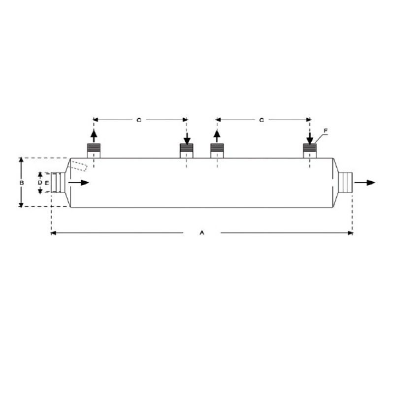
Acél hőcserélőink anyaga AISI 316 - V4 rozsdamentes acél. Kiváló hatásfokkal és robosztus kialakítással rendelkeznek, A robosztus kialakítás lehetővé teszi a magas nyomásértékek melletti biztonságos üzemelést is. Primer kör maximum 10 bar,szekunder k...

